ro | en
intro|extro.vertit

intro|extro.vertit

Autori: arh. Gruia Dumitrescu, arh. Dimitrie Zerva, arh. Petru Darida, arh. int. Iulia Motica, arh. int. Camina Zerva
Birou de proiectare: Outbox Studio & Ioka Design

Colaboratori:
Structura: ing. Radu Geanuguș (Concept Structure)
Instalații: ing. Ovidiu Ganea, ing. Marius Bordei, ing. Iulian Tindeche (Dimstyle MEP)
Foto: Sabin Prodan (Tryingtodoart), arh. int. Iulia Motica
arh. Ica Papari
Foto: Sabin Prodan, arh. int. Iulia Motica

Comentariul autorului

Locuința se află într-un cartier din nordul orașului București, având o orientare aproape perfect aliniată la punctele cardinale. Astfel, ar trebui menționat că spre sud, în imediata vecinătate a amplasamentului se află o pădure, element decisiv pentru beneficiari în alegerea terenului.
Așadar, proiectul propune rezolvarea spațială și volumetrică a temei primite de la beneficiari, sub forma unei locuințe care să profite cât mai mult de curte și de proximitatea față de pădure relaționând diferit cu împrejurimile.
Astfel, volumul propus reprezintă îmbinarea funcțională și armonioasă a două tipuri diferite de fațadă: fațada nordică, cu orientare spre stradă, este o fațadă de tip introvertit, austeră, închisă, cu vitraje mici. Fațada sudică, dinspre curte cu deschidere spre pădure, este o fațadă de tip extrovertit, prevăzută cu vitraje supradimensionate care asigură o legătură puternică cu exteriorul. La nivel de finisaje, am urmărit o tratare selectivă a suprafețelor prin culori neutre și accente contrastante ca materialitate - lemn, metal. Parterul este tratat cu o tencuială decorativă gri și prezintă pe alocuri accente din lemn fapt ce conferă greutate compozițională a volumetriei propuse. Restul fațadei este finisată cu tencuială decorativă albă, cu accente metalice de detaliu (tâmplărie, glafuri) oferind astfel un contrast plăcut cu parterul. În completarea acestui aspect, pe fațada de sud etajul 1 iese în consolă, realizându-se astfel o detașare și mai puternică între primele două niveluri. Prin utilizarea acestor console, atât peste parter cât și peste etajul 1, se realizează controlul solar pentru vitrajele supradimensionate dinspre curte. Etajul 2, un etaj retras, se percepe doar dinspre stradă, fiind retras de la fațada sudică. Astfel este generată o terasă la etajul 2 care are aceeași orientare sudică și oferă o perspectivă utilizatorului către pădure. Nu în ultimul rând, menționăm elementele tip profil „C” care se regăsesc pe fațadă și marchează nivelurile clădirii. Aceste profile ne-au permis să facem trecerea dintre două materiale sau dintre două culori distincte în același plan al fațadei.
Volumul interior este definit prin ruperi de nivel și spații cu dublă înălțime astfel rezultând încăperi generoase de înălțimi variate, care se îmbină armonios și propun un rezultat echilibrat al relației dintre cele două tipuri de fațadă.
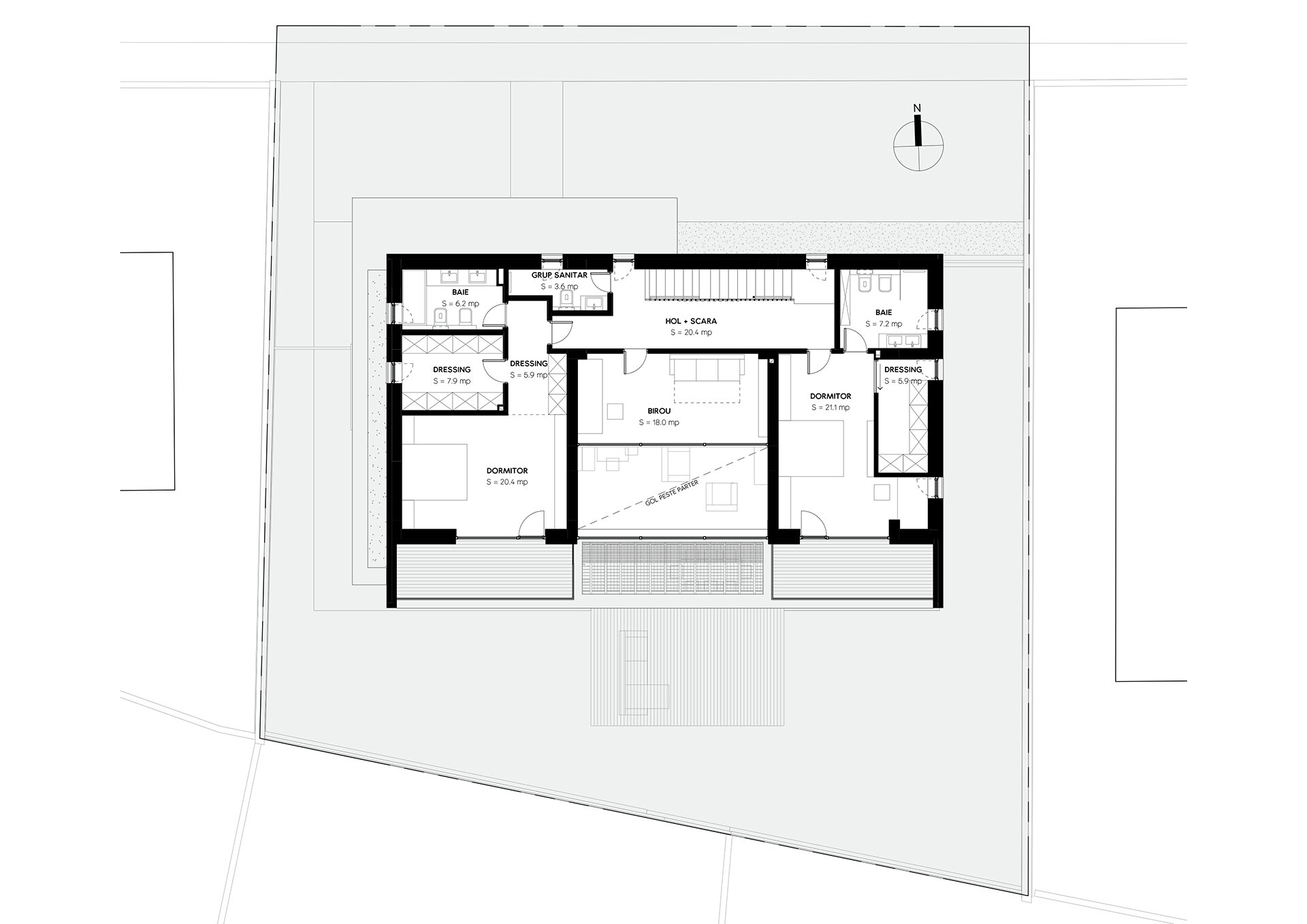
Parterul este dedicat zonei de zi, cu bucătăria amplasată în imediata vecinătate a accesului principal, iar zona de living-room / dining-room este poziționată în centrul partiului, fiind deschisă pe dublă înălțime. La etaj sunt poziționate două dormitoare, fiecare cu baie și dressing proprii și un birou. Toate încăperile au deschiderea către sud, biroul având o perspectivă și peste zona de zi. La ultimul etaj se află o cameră de zi, denumită și cameră de hobby care poate fi utilizată și ca un al doilea birou.
În final, amenajarea de interior este dominată de volumetrii simple și curate, iar din punct de vedere cromatic predomină albul, negrul și nuanțele de gri, realizându-se astfel o coerență între aspectul exterior și atmosfera interioară. Pardoseala finisată cu parchet stratificat apare ca un element complementar cu un plus de căldură în amenajare.