ro | en
Stitch Your Heritage at Roșia Montană

Stitch Your Heritage at Roșia Montană

Authors: arh. Adrian-Sebastian Andrei, arh. Tudor Sabin Lulciuc, arh. Anca-Maria Tudor

Authors’ Comment

The project’s intention aims to revitalize Roșia Montană through architecture and design of a visitor centre that seamlessly integrates heritage conservation with sustainable development. By respecting the village’s historical identity while introducing thoughtful, modern interventions, we seek to create spaces that support local economic growth, enhance tourism, and improve the quality of life for residents.

The mining practices in Roșia Montană have long shaped the village’s way of life, influencing everything from the daily routines to the local fashion. For centuries, the extraction of gold and silver deeply impacted the social structure and economic activities in the area. Many families relied on mining for their livelihoods, and the town's culture was closely tied to the industry. However, with mining no longer a viable activity in the region, there is a growing need to explore alternative, sustainable sources of income that can both preserve local traditions and provide a future for the community.

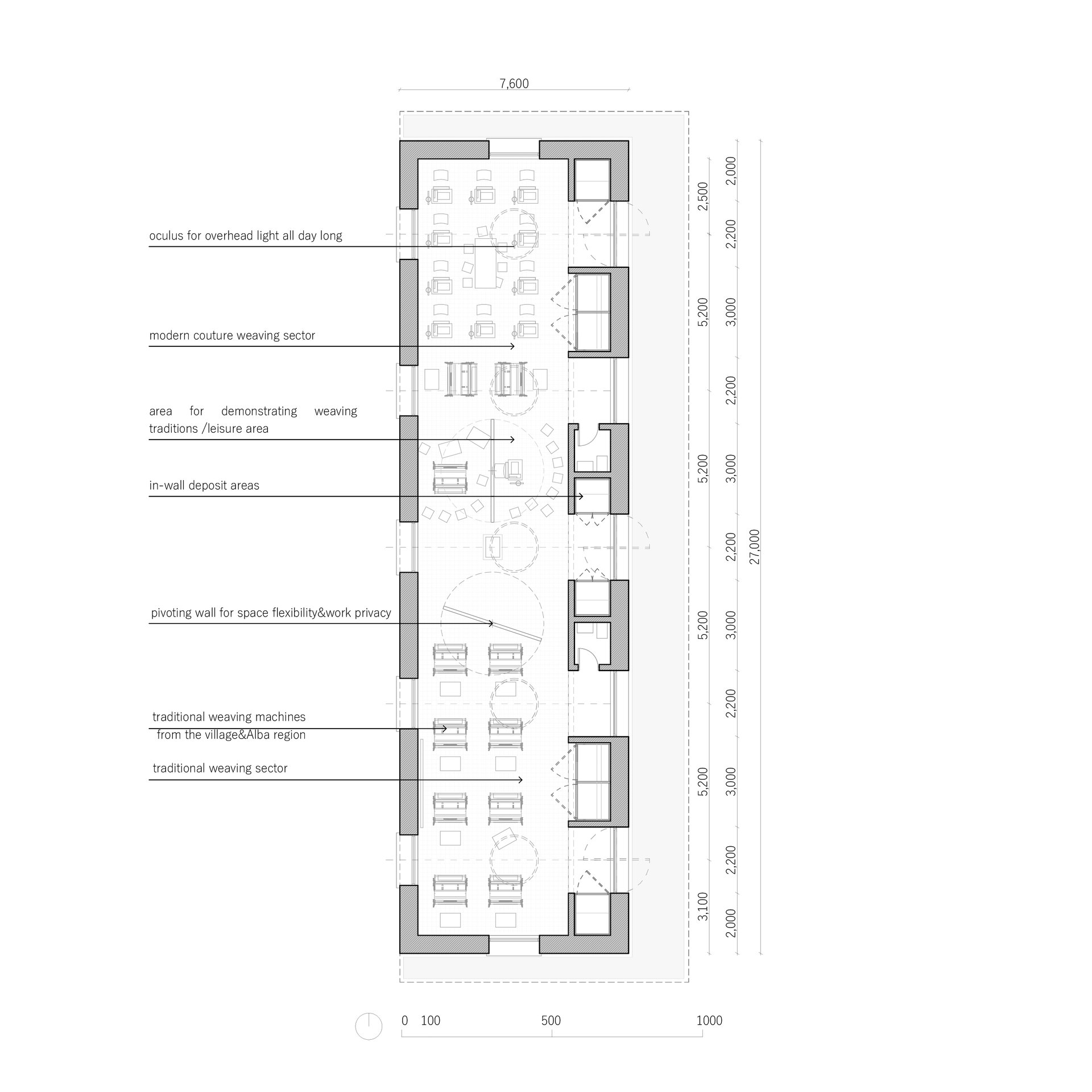
The architectural proposal focuses on the revival of weaving as a cornerstone of local small businesses, integrating this traditional craft with the village’s modern needs. Weaving, like mining in the past, is deeply embedded in the fabric of Roșia Montană’s cultural identity. Historically, weaving was not only a practical necessity for local families but also a means of expression and creativity.

This traditional skill represents a direct link to the village’s past, offering a valuable opportunity to revive local craftsmanship and foster economic growth.


The proposed visitor center in Roșia Montană embraces adaptive reuse, education, and community life. By restoring rather than replacing, the project preserves the village’s architectural identity while giving it renewed purpose.

Sustainability is central, using local and natural materials such as wood, stone, and hempcrete—produced on-site from regional resources. Salvaged materials from abandoned structures are reintegrated, reducing waste and reinforcing the connection between past and present.

At its core is the weaving centre, a space where traditional craftsmanship is revived and shared. More than a building, the visitor centre fosters togetherness, empowering locals, artisans, and visitors to engage with heritage through hands-on experiences.

By prioritizing restoration, sustainability, and community-driven revitalization, this project ensures Roșia Montană’s cultural legacy thrives as a living, evolving presence in the village’s future.