ro | en
Plumbuita Social Center

Plumbuita Social Center

Authors: arh. Bogdan Neagu
Firm: NBC/ARHITECT srl

Collaborators:
Collaborators: arh. Nicoara Stoenescu , arh. Valentin Pîrvu , arh. Dana Stanciucu, arh. Irina Marinescu

Authors’ Comment

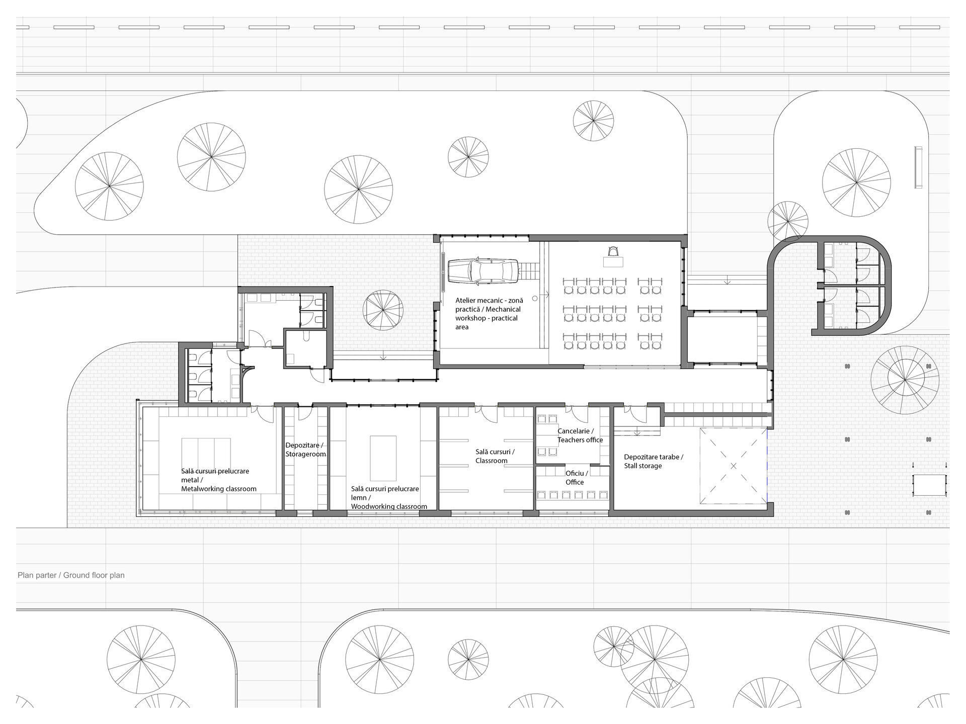
We developed the Plumbuita Vocational School project as an integrated solution for professional training, social inclusion, and urban regeneration.
The proposed spaces include workshops for technical education, areas for craft fairs, and a meadow designated for community events.
The project was awarded 3rd place in the international competition "Colentina Lakes LOT 2."
It was the only proposal that integrated a vocational school with social and leisure functions — offering a comprehensive vision for the development of the Plumbuita neighborhood.

SOCIAL INTEGRATION
Only in the Plumbuita area, we identified approximately 350 properties where multiple families live, totaling around 1,200–1,500 people living below the subsistence level.
Plumbuita individual housing area
Problems:
- Around 85% of the population is of Roma origin, and a very large share of residents have no income, no access to running water or sewage, and live in large families with many children.

- Some families have members who have served time in prison.


- From our on-site analysis, some declared that they have members living with HIV/AIDS.

- Due to the peninsula-like configuration of the area, segregation from the surrounding urban fabric is reinforced.

- A gentrification process has begun, with higher-income families buying properties and cohabiting with the current residents. However, this process is advancing very slowly because many families living at the edge of subsistence (marked in red) do not have legal ownership documents for their land, making investment in these areas nearly impossible.
It is likely that this type of living will persist for at least the next 20 years unless social integration and education programs are implemented.
There is potential among the younger generations — if they undergo a re-education process, they could improve the community's standard of living.

- From a landscaping perspective, no major issues exist, but there is invasive vegetation that should be removed, and hedge-like shrubs block visibility.

- There are insufficient paths and pedestrian connections.

- No bicycle paths have been identified.
Solutions:
The landscaping strategy must FIRST AND FOREMOST address the social problem of the area.
- We propose building a social center of approximately 300 sqm, equipped with 3–4 classrooms for various vocational courses (mechanics, carpentry, construction, textile making, music, etc.).

- A designated space for occasional flea markets or donation areas — especially since there are high-income residential developments nearby.

- Based on international best practices, for communities with very low or no income and legal problems, community gardens have proven beneficial.
We have identified several areas suitable for such gardens, where organic vegetables can be grown and sold locally, with proceeds reinvested into the community.
Of course, this solution requires the support of social services from local authorities.

- Based on surveys we conducted, most respondents said they did not need more playgrounds and would prefer community gardens.
Therefore, we believe that the island in Plumbuita is more suitable for such a garden, while other available spaces would be more appropriate for playgrounds, which require less space.

- The island between the two marginalized communities and the area within Plumbuita Monastery have the highest potential to solve this issue.

- Create connections/bridges linking the low-income areas with the neighboring higher-income zones.

- In Plumbuita Park, build a central space that can host cultural events (concerts, open-air screenings, minority arts festivals), attracting visitors from other neighborhoods and, over time, raising the local cultural standard through this activity mix.

- A social center with a market area, event meadow, and a street with steps (designed in a vernacular, picturesque style) could become a local attraction hub.