ro | en
Institut de Documentare și Cercetare a Patrimoniului Cultural Arădean

Institut de Documentare și Cercetare a Patrimoniului Cultural Arădean

Autori: Roxana Maria Ocoș

Îndrumător: conf. dr. arh. Vlad Sebastian Rusu
ing. Kirizsan Imola
Universitate Tehnică Cluj-Napoca, Facultatea de Arhitectură și Urbanism

Comentariul autorului

Ca o definiție, cultura reprezintă un cumul de valori materiale și spirituale, intelectuale și emoționale „prin care o persoană sau un grup exprimă umanitatea și semnificațiile date ei despre existență”. În acest fel, cultura este în mod inerent legată de societatea în care trăim, creativă și consumatoare atât prin valorile istorice moștenite de-a lungul timpului, cât și prin noile tehnologii și ideologii contemporane.
Deși cultura există și trăiește alături de noi, uneori suntem incapabili să o vedem, să o simțim și chiar să o prețuim. De aceea, consider că este necesară o reînnoire a strategiei sectorului cultural, modelarea unei relații cu comunitatea, a dreptului de acces și de participare la viața culturală, îmbunătățirea calității vieții oamenilor și sprijinirea activităților de educație culturală, precum și sensibilizarea cetățenilor pentru a putea cunoaște să aprecieze și să consume elementele materiale și imateriale ale moșteniri oferite de patrimoniul cultural.
Patrimoniul cultural al orașului este un instrument esențial în viața cetățeniilor, fiind în fond chintesența identității acestora, reprezentând atât mărturia valorilor cât și contribuind fundamental la creșterea calității vieții colective. În Municipiul Arad, acest lucru se poate observa prin arhitectura orașului. Spre exemplu, în județul Arad componenta cea mai valoroasă a patrimoniului cultural o constituie patrimoniul material imobil. Așadar prin aceste exemple vizuale se poate observa că Municipiul Arad are potențialul de a deveni un adevărat muzeu în aer liber de stiluri arhitecturale specifice secolelor XVIII – XX cu o arhitectură extrem de valoroasă a orașului, dată atât de unitatea stilistică, cât și din punct de vedere urban al zonei centrale.
Având în vedere aceste circumstanțe, am ales să abordez o temă cu un comandament inerent asupra societății arădene, anume realizarea unui institut de asemenea anvergură care va servi drept catalizator în rebalansarea echilibrului orașului Arad.
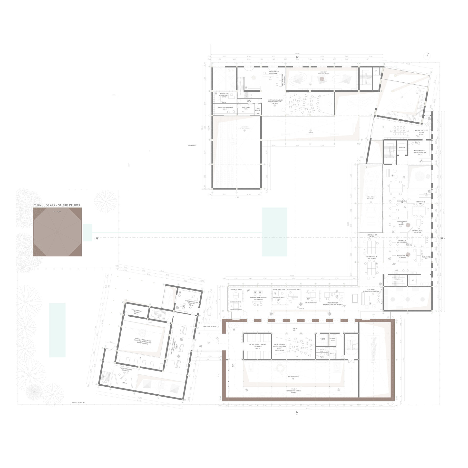
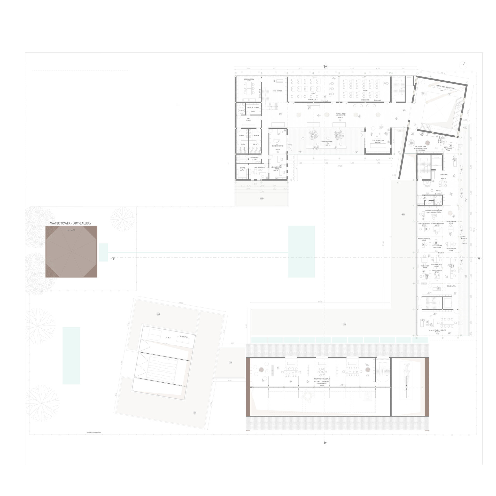
Institutul va avea un caracter hibrid, fiind compus din trei nuclee principale, fiecare având rolul său, dar totodată se va prezenta ca un unic ansamblu particular dătător de cunoaștere într-un domeniu specific. Primei zone principale se atribuie Direcției de restaurare a Patrimoniului Imobil Arădean. Această direcție va fi compusă din laboratoare de cercetare și documentare a bunurilor culturale, ateliere și spații de restaurare și conservare, precum si depozite aferente subzonelor ce formează această direcție, anume zona dedicată pietrei și metalului și zona aferentă dedicată lemnului. Al doilea nucleu principal al institutului o formează Direcția Arhivistică a Patrimoniului de Specialitate Arhitectural. Direcția arhivistică va cuprinde diverse memorii, planuri, elevații ale clădirilor din Arad și ale unor arhitecții arădeni care au contribuit la dezvoltarea calitativă a fondului construit care formează astăzi Ansamblul Urban Arădean. De asemenea această direcția va cuprinde și o colecție inedită de imagini istorice cu clădiri. Spațiile acestei direcții sunt alcătuite din două depozite cu specific anume și laboratoare de cercetare documentare și restaurare a fondului papetar arhivistic, precum și spațiile aferente publicului interesat. Al treilea nucleu care aparține institutului este destinat educației de specialitate în prezervarea, cunoașterea și formarea personalului de specialitate în domeniile aferente patrimoniului. Această parte include biblioteca de patrimoniu a orașului, o sală studio pentru diverse evenimente, săli de clasă și diverse spații multifuncționale pentru tinerii interesați în cunoașterea patrimoniului cultural.



2021
Cercetare prin arhitectură
Diplome de arhitectură
Powered by: