ro | en
The house in the orchard
  • Prize of the “Built Architecture / Individual House Architecture” section

The house in the orchard

Authors: arh. Mihai Nuta, arh. Ion Soreanu, arh. Alexandra Ilie
Firm: ZONA

Collaborators:
Structure project: ing. Nicolae Anton (Optim Engineering & Consulting)
plumbing: ing. Sergiu Manea
Executat: ZONA
Photo: arh. Iulius Cristea
Client: Letitia Ancuta
Photo: arh. Iulius Cristea

Authors’ Comment

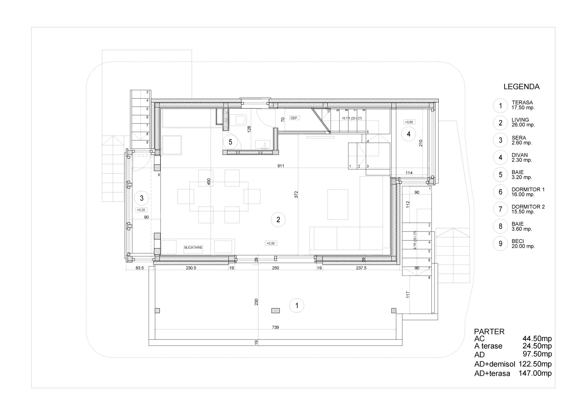
An orchard abandoned for many years, on a hillside in Cornu de Jos commune, like all the orchards in the area, invaded by various species of woody vegetation and lately by bears. The land has a steep slope in the N-S direction corresponding to the transverse profile of the construction and the narrow linear geometry of the land of approx. 1400 sqm
The house is structured on a basement, ground floor and attic. A footprint as small as possible at ground level was desired for various reasons, including that of a small energy footprint and here I refer to the quantities of concrete and reinforced concrete incorporated. Thus, on the diagonal on the valley side, we end up with app 4.5m from the corner of the basement structure to the upper connection of the lattice frame.
The conceptual reason for the project was the attempt to offer another image of traditional Romanian architecture in a small fusion between the Oltenia style and the dou-gong architecture specific to Japan, China and Korea. The wooden structure of the house is made of solid softwood profiles (fir/spruce) with lengths of maximum 8m delimited by the cutting power of the sawmill. The wood must be cut in the period recommended by Romsilva specialists, namely October-April. More recently, due to the seasonal shift, I think the period from November to April is more suitable. Larch profiles were used for the porch posts, which have a density twice that of spruce.
The architectural concept is in an intimate relationship with the structural one, so it would be better if it was developed by the architect and not by the engineer. Of course, I am referring to small houses and I do not want to compete in any way with the interwar architects who built without engineers, but only based on calculation models, structures with a height regime of P+9. In the countries that I have listed from the Far East, there are dou-gong masters through whom the technique of creating multi-level wooden structures has been transmitted since ancient times without being licensed by a specialized university. These structures have integrated into the concept also the way to respond to dynamic loads induced by large-magnitude earthquakes. There is a similarity between these dou-gong masters and the brand of “Maramureș masters” and this would be, by extrapolation, a bit like that between judo and the popular trantă. (We are referring here only to the technique and not to symbols, culture, etc.)