ro | en
Living in Reflection

Living in Reflection

Authors: arh. Andreea-Carmen Mirea
Firm: ACM ARH STUDIO SRL

Collaborators:
Mobilier la comanda: Jif Interiors, Iuliana Feier
Iluminat: Zeta Studio Concept
Builder: Arlanda Construct, Marin Cioaca
Photo: Anatol Strună
Photo: Foto: Anatol Strună

Authors’ Comment

A personalized living space, as a reflection of oneself and one’s lifestyle

The home is the place where we spend most of our time, and as such, it deserves to be created in harmony with the way we live. It becomes a reflection of our culture, our mindset, our habits, passions, and family — a space with soul.
This interior design project presents a refined vision of personal space, where exclusive contemporary design is seamlessly intertwined with functionality.
At first glance, the space stands out through the harmony of natural materials, warm tones, and refined, innovative design elements. The concept was built around the idea of reflection not only as a metaphor, but as a real spatial need — to visually expand a limited interior. Strategically placed mirrors open up new perspectives and bring depth, transforming the space into one that feels fluid, inviting, and truly livable.
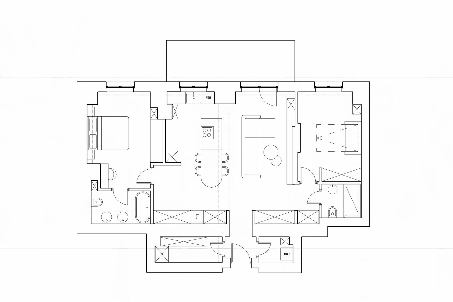
The living room, kitchen, and dining area are united in a generous open-space, where the boundaries between relaxation, socialization, and daily rituals naturally dissolve. Here, natural light flows in through large windows, dressed in airy white curtains and soft drapes. The natural wood flooring adds warmth and visual continuity throughout.
Thoughtfully selected materials, custom-made furniture, black accents, and ambient lighting define an atmosphere that is both elegant and contemporary. The lighting design is intended not merely to illuminate but to stage moods, to follow the rhythm of daily life, and to enhance the depth of the space. Lighting becomes more than a technical element — it is a continuation of the design itself, subtly shaping perception and comfort.
The generous sofa, with its plush textures and soft hues, invites you to unwind — becoming the point of balance between the elegant kitchen and the dining area. Glossy surfaces are paired with matte finishes, creating a refined contrast that speaks to the tactile and visual sophistication of the space.
Sculptural lighting fixtures, with their fluid and expressive lines, add an artistic accent, gently framing the atmosphere of quiet evenings. The color palette is refined — neutral tones, velvety greys, and glossy black accents — reflecting a contemporary yet deeply personal lifestyle.
The design highlights not only aesthetics, but above all, a sense of well-being: a space that breathes with you, that reflects the need for balance between beauty and function.