ro | en
D. House

D. House

Authors: arh. Sonia Troancă, arh. Andrei Crăciun, arh. Ioana Amarașteanu
Firm: AXS Studio

Collaborators:
Photo: arh. Sabin Prodan
Photo: arh. Sabin Prodan

Authors’ Comment

D. House represents the interior design project of a single-family house with a generous usable area of 800 square meters, designed in a classic contemporary style. The concept aims to harmoniously blend the timeless elegance of classic elements with the clean lines and functionality of contemporary design, creating a space that is both sophisticated and inviting. Both the architectural design and the interior design were carried out by AXS Studio Architecture Office, ensuring a cohesive and well-balanced concept for the home.

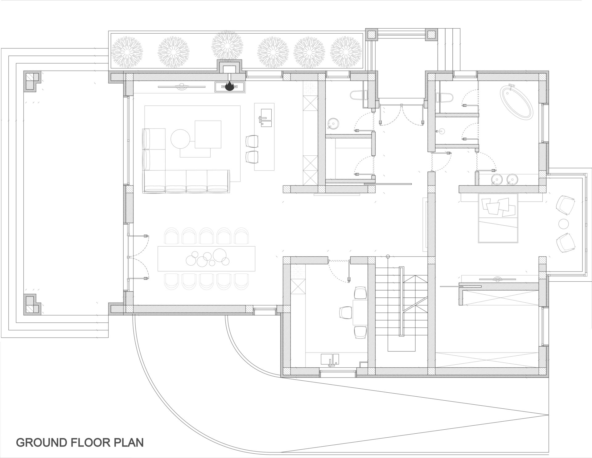
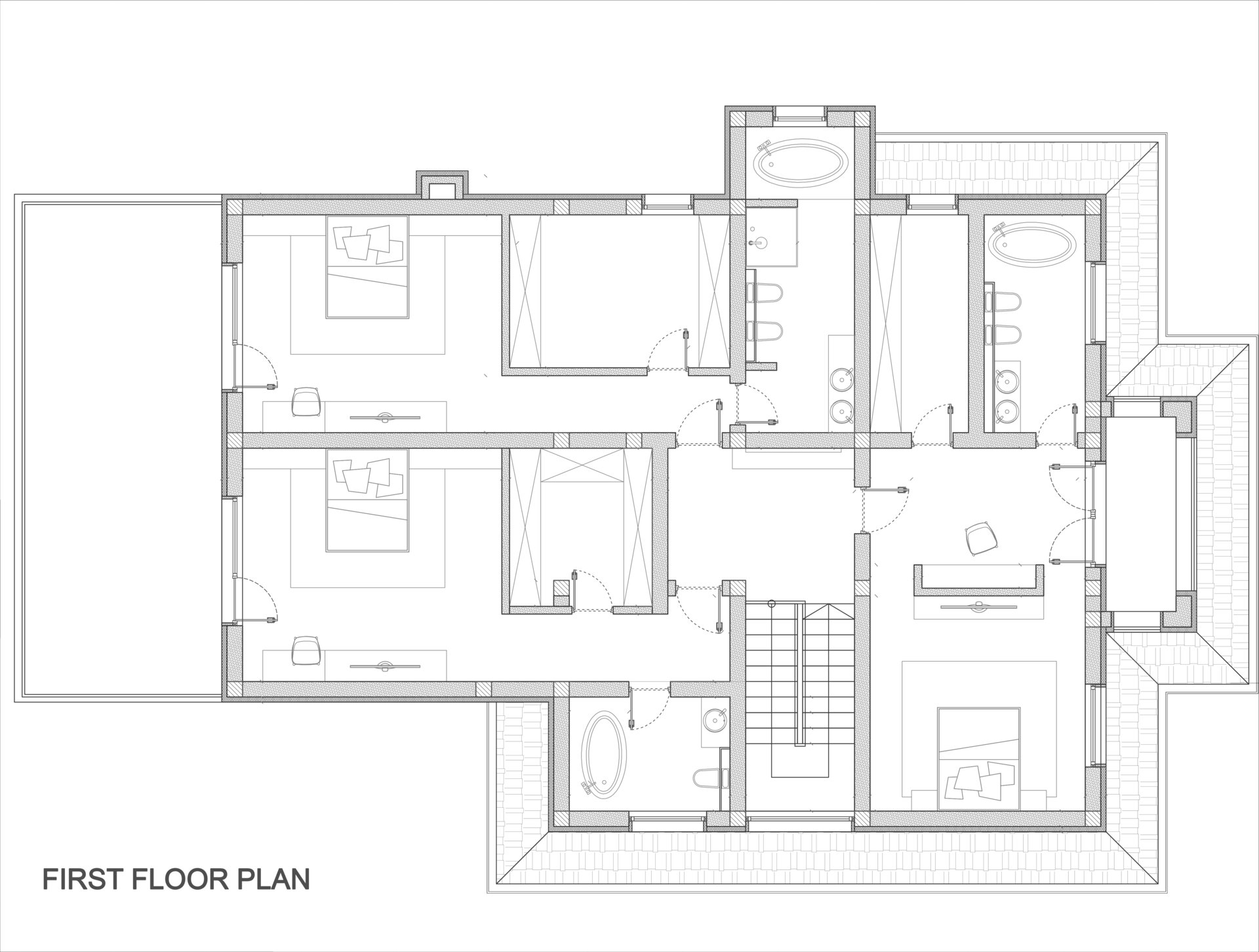
The furnished space consists of a living area on the ground floor, featuring a spacious living room that incorporates a bar area with seating, a dining area nearby, and an adjacent enclosed kitchen. Also on the ground floor is the main master bedroom, complete with a walk-in closet and en-suite bathroom, with direct access from the entrance hall, designed to ensure privacy from the main living spaces. The upper floor includes three additional spacious bedrooms, each with its own dressing area and private bathroom. The technical spaces are located in the basement, while the attic is dedicated to recreational activities, featuring an open-space layout.

The design stands out through a warm color palette, which adds a sense of comfort and intimacy, with a backdrop of pure white walls, intended to enhance the feeling of space and brightness. The materials selected are of the highest quality, including fine marble, natural wood in warm tones, velvet, and silk textiles, as well as subtle metallic accents, such as gold details on furniture and accessories, adding an extra touch of refinement.

Every detail has been carefully considered to offer a harmonious atmosphere and comfort, fulfilling the clients’ desire for a stylish yet functional home that will remain timeless for years to come.