ro | en
Apartment for two young people

Apartment for two young people

Authors: arh.Victor Spînu, arh.interior Ecaterina Mirza

Collaborators:
mobilier: Petru Sava
executie lucrari interior: TopDesignConstruct
lemn: Iconic wood, Woodwork
Plante: Larus.garden
Photo: Mirza Ecaterina

Authors’ Comment

Introduction
This project showcases the interior design of a residence, tailored for a young couple of dentists, characterized by an intense and disciplined lifestyle.

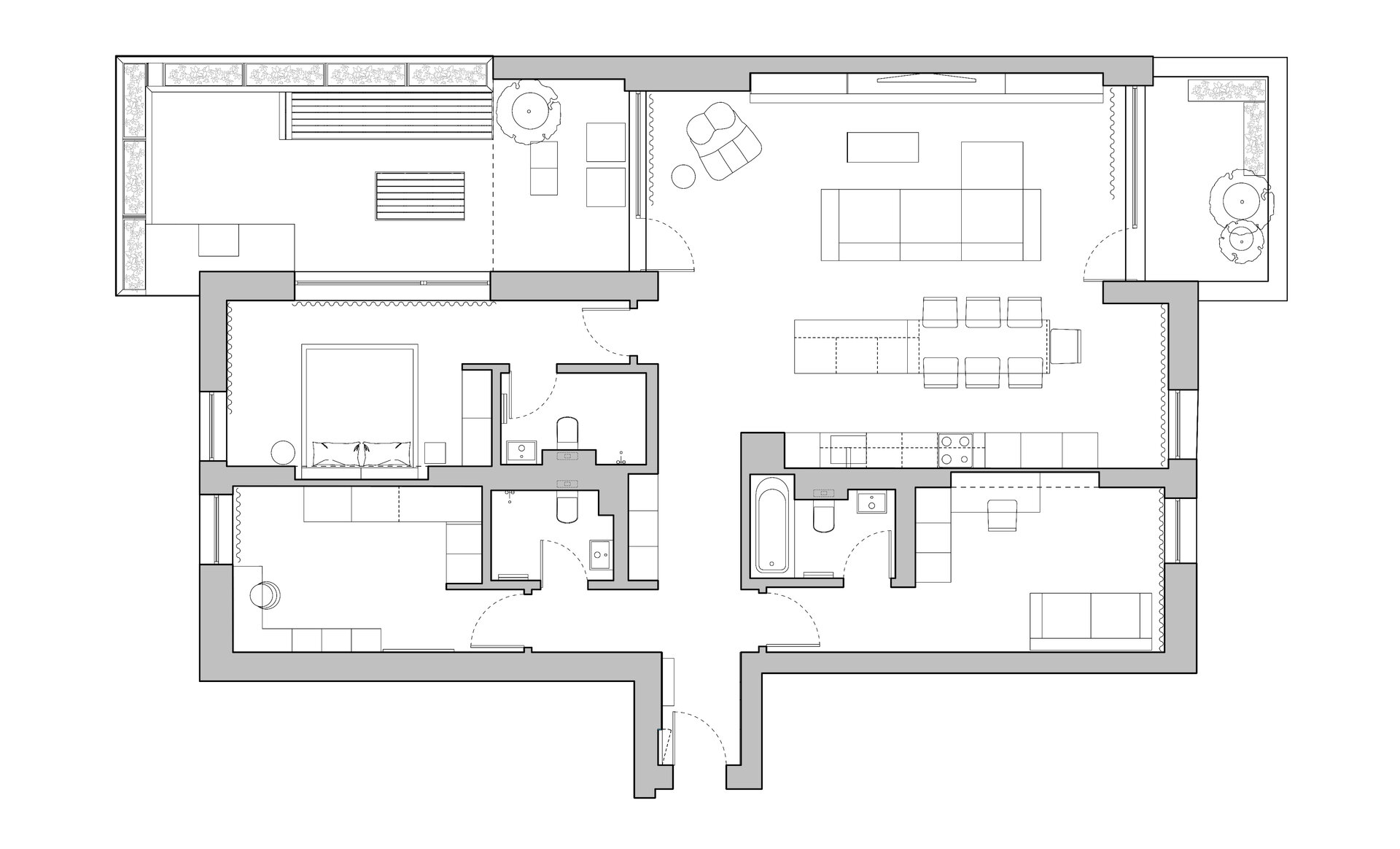
Organization
The living space - consisting of living room, dining room and kitchen - has been treated as a unit. The color palette is sober and refined: anthracite gray and warm white tones, complemented by natural wood accents. The focal point that visually anchors the space is the rhythmically elegant wooden slatted ceiling. By aligning these slats flush with the white ceiling, a seamless visual flow is achieved, eliminating any fragmentation or visual clutter.
The clients are people who love to entertain, so a practical and welcoming solution was chosen: the unified table and kitchen island. This functional choice supports the interaction between host and guests, allowing the culinary activity to unfold in an integrated way without breaking the conversation. The built-in library discreetly incorporates the media area and provides a warm backdrop, ideal for displaying books and personal artifacts.
A particular highlight is the charcoal artwork depicting a samurai. A personal choice of the clients, this piece expresses quiet strength, rigor and respect for discipline. The black and white drawing does not visually burden the atmosphere - on the contrary, the charcoal texture adds depth and expressiveness.
Terrace - an extension of nature
The terrace becomes a natural extension of the interior. The furniture is made of exotic Brazilian wood, chosen for its natural moisture resistance and durability. Spotlights, discreetly placed among the plants, are directed upwards, highlighting the reddish leaves of the Japanese maples and casting elegant shadows on the brick wall. The result is an intimate, warm and lively nook, ideal for quiet evenings or gatherings with friends.

Natural details - the wooden logs
Solid wooden logs can be found in every room - in the bedroom, living room or balcony. They have been carefully integrated and function as sculptural pieces, retaining the naturalness of the wood through visible cracks, knots or fibers. In the bedroom, the raw wood tempers the straight lines and cool finish of the decorative plaster, transforming the room into a warm space. Each log is unique, discreetly contributing to the identity of each area.

Project Goals
The main goal was to create a cohesive space balanced between minimalism and details with personal value. The absence of excessive decorative elements and objects that could visually clutter the space, contributes to an airy, ordered and calm atmosphere. Each piece has a clear and functional role.