ro | en
It’s a wrap
  • Nomination for the “Interior Space Architecture / Interior Residential Design” section

It’s a wrap

Authors: arh. int. Camina Zerva, arh. int. Iulia Motica, arh. Dimitrie Zerva, arh. Gruia Dumitrescu, arh. Petru Darida
Firm: Ioka Design & Outbox Studio

Collaborators:
Finisaje ceramice & sanitare: SSAB
Parchet: Grisco Construct
Builder: Fladmi Construct
Mobilier custom made: Outbox Studio, Arcade Group, Petru Sava
Mobilier & Iluminat: Moor, The Edit, Project1, Lighting Store
Photo: Ioka Design

Authors’ Comment

This project represents the translation—into the simplest and most functional form—of the needs of its beneficiaries: architects who, in this case, took on the roles of both client and designer.
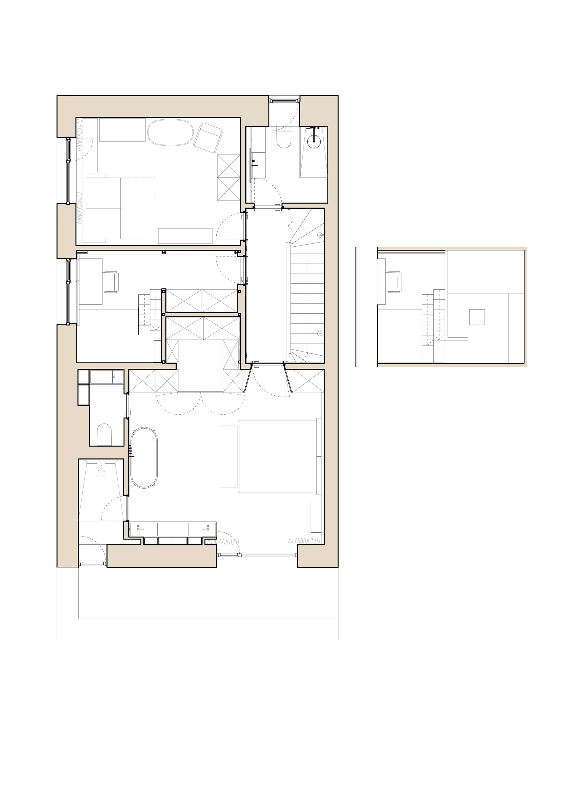
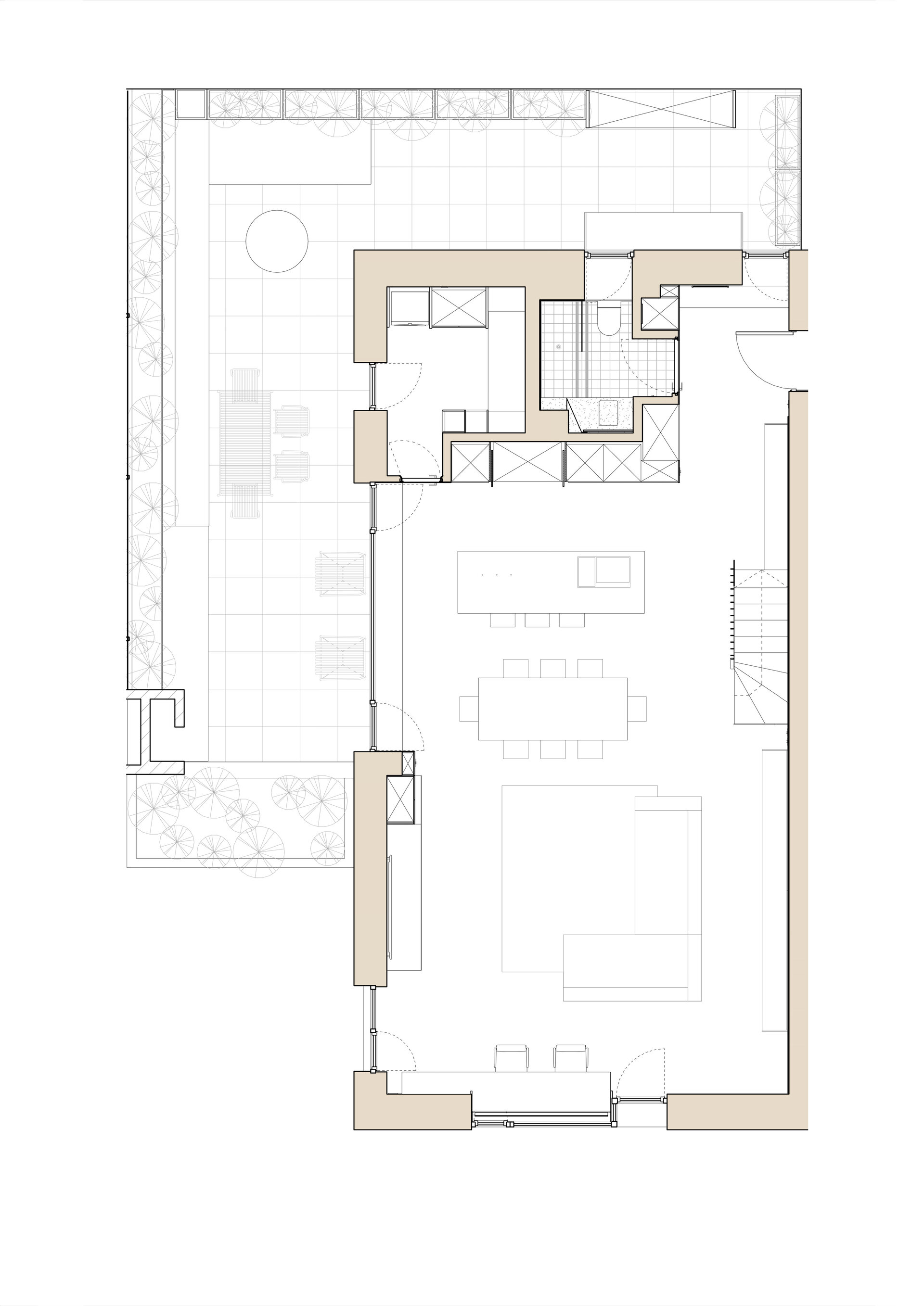
Volumetrically, the space offers generous premises. With a total surface of 150 sqm, the apartment is organized across two levels that clearly separate the daytime and nighttime zones. Several layout optimizations were made in the day area, while the night area underwent significant interventions in the configuration of the master bedroom, dressing room, bathroom, and guest room.
The design approach is straightforward, at times minimalist, crafting an image that conveys visual and mental calm—an increasingly sought-after quality in contemporary living.
In the daytime area, the ensemble comprising the bathroom, storage room, and tall kitchen units is unified into a single volume with a bleached oak veneer texture, elegantly concealed behind filo-muro doors. The generous 70 sqm open space houses a ceramic-topped kitchen island with integrated induction, which allows the entire surface to be used when the cooking area is not in use. A dining table for 6–8 people, a corner sofa, and a double workstation overlook the greenery of the nearby park.
The nighttime area posed the greatest volumetric challenges due to the pitched roof. With a ridge height of approximately 6 meters, the guest room accommodates three sleeping areas and two workstations. A metal mezzanine, accessed via a sleek staircase, hosts the third bed and second desk, with the master bedroom’s dressing area tucked neatly underneath.
The master bedroom was reconfigured to resemble a hotel suite: the bathroom zone is partially open, featuring freestanding washbasins and a bathtub on display, while the shower and toilet remain enclosed.
A standout feature is the bathroom specially designed for the family’s dog. Discreetly hidden behind wood paneling near the entrance, this unique space combines functionality with visual appeal, fully clad in mosaic tiles. It’s a testament to a holistic design philosophy—where even the nonverbal companions are considered with the same aesthetic rigor and attention to detail.
The overall image of the project reads as a wooden manifesto: a warm design language, calm scenography, and a restrained natural palette dominated by warm oak tones used in both wall cladding and furniture. Wood becomes more than decoration—it becomes architecture, enveloping the space, warming it, and creating visual coherence.
Lighting—either recessed or discretely punctual—highlights textures and volumes without drawing attention away from the broader composition.
This project offers more than a visual aesthetic—it proposes a lifestyle where the essential is celebrated, and where minimalism is not about absence, but about harmony.